Bauakten

Die Bauakten des Mietshauses sind im Landesarchiv nicht vorhanden. Sie sind auf mysteriöse Weise aus der staatlichen Einrichtung verschwunden, obwohl die Akten der benachbarten Gebäude erhalten sind. Möglicherweise hängt dieses rätselhafte Verschwinden damit zusammen, dass im Haus der obere Teil der Treppe umgebaut wurde. Diese Veränderung beeinträchtigt die Abgeschlossenheit des Treppenhauses und seine Brandsicherheit.


Rekonstruktion der Bauakten

Die Zeichnungen aus den verlorenen Bauakten habe ich selbst rekonstruiert. Um den Zustand des Hauses im Jahr 1894 zu untersuchen, mussten an einigen Stellen Putz oder Tapeten entfernt werden, um die Beschaffenheit der Wände, Fenster und des Mauerwerks zu analysieren. Anschließend habe ich das Gebäude innen vollständig vermessen und mit der Erstellung der Zeichnungen begonnen.

Außenaufmaß des Hauses

Die Vermessung der äußeren Abmessungen des Gebäudes und des Grundstücks erfolgte mit einem Baulaser. Dabei stellte sich heraus, dass die Gebäudeecken – mit Ausnahme des Treppenhauses – keine exakten 90°-Winkel bilden. Ich habe die Messungen mehrfach mit unterschiedlichen Methoden überprüft. Diese Winkel waren bereits ursprünglich im Fundament angelegt, und die präzise Arbeit der damaligen Bauhandwerker verdient großen Respekt.

Zustand im Jahr 1894 – Rekonstruktion

Blick auf das Haus Dietel von der Oberen Silberstraße, Greiz.
Blick auf das Haus Dietel von der Oberen Silberstraße
Blick auf das Haus Dietel vom Oberen Schloss, Greiz.
Blick auf das Haus Dietel vom Oberen Schloss
Blick auf das Haus Dietel von der Cloßstraße, Greiz.
Blick auf das Haus Dietel von der Cloßstraße
Blick auf das Haus Dietel von der Pohlitzer Straße, Greiz.
Blick auf das Haus Dietel von der Pohlitzer Straße
Draufsicht auf das Haus Dietel, Greiz.
Draufsicht auf das Haus Dietel
Grundriss des Parterres des Hauses Dietel, Greiz.
Grundriss des Parterres des Hauses Dietel
Grundriss des oberen Kellerbereichs des Hauses Dietel, Greiz.
Grundriss des oberen Kellerbereichs des Hauses Dietel
Grundriss des unteren Geschosses des Hauses Dietel, Greiz.
Grundriss des unteren Geschosses des Hauses Dietel
Grundriss des mittleren Geschosses des Hauses Dietel, Greiz.
Grundriss des mittleren Geschosses des Hauses Dietel
Grundriss des oberen Geschosses des Hauses Dietel, Greiz.
Grundriss des oberen Geschosses des Hauses Dietel
Grundriss des Dachgeschosses des Hauses Dietel, Greiz.
Grundriss des Dachgeschosses des Hauses Dietel
Grundriss des Dachbodens des Hauses Dietel, Greiz.
Grundriss des Dachbodens des Hauses Dietel
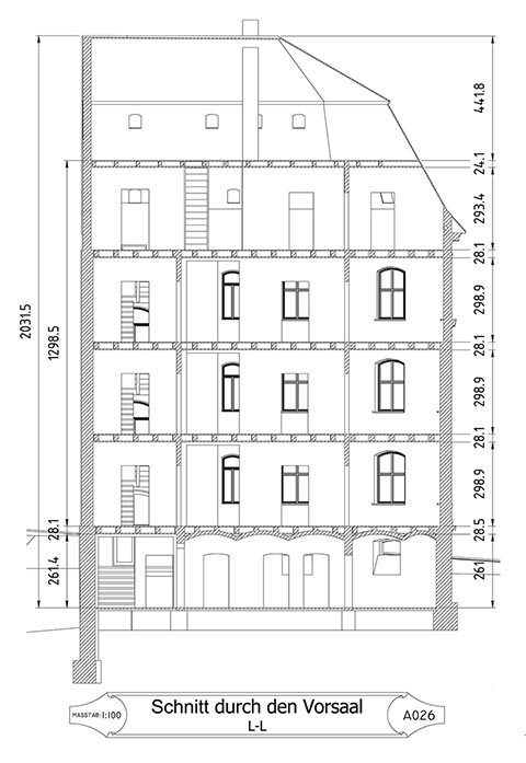
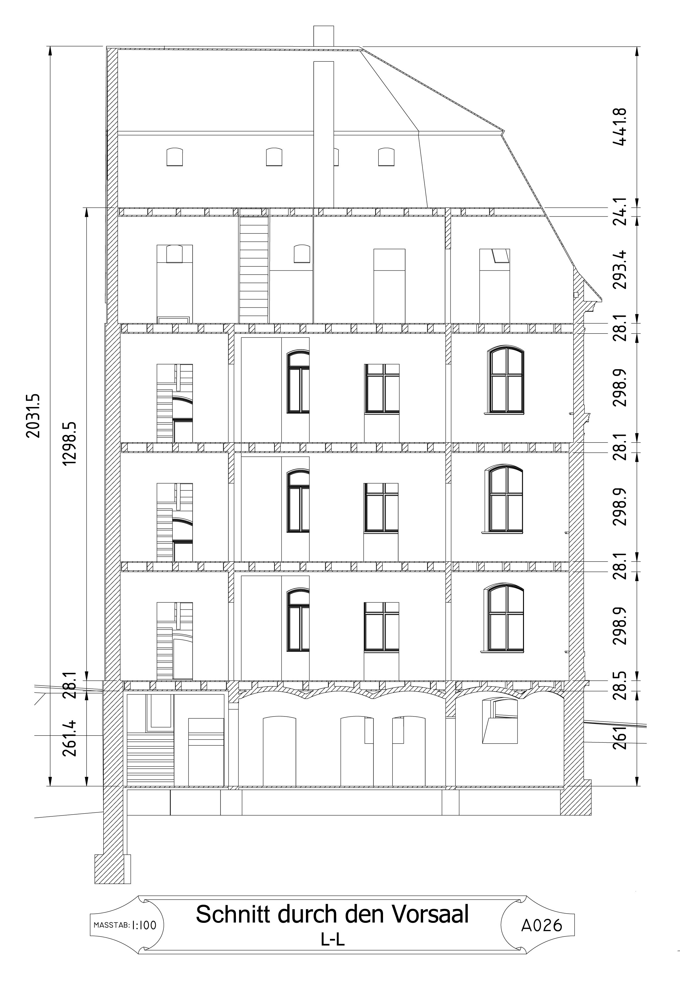
Schnitt durch den Flur des Hauses Dietel, Greiz.
Schnitt durch den Flur des Hauses Dietel
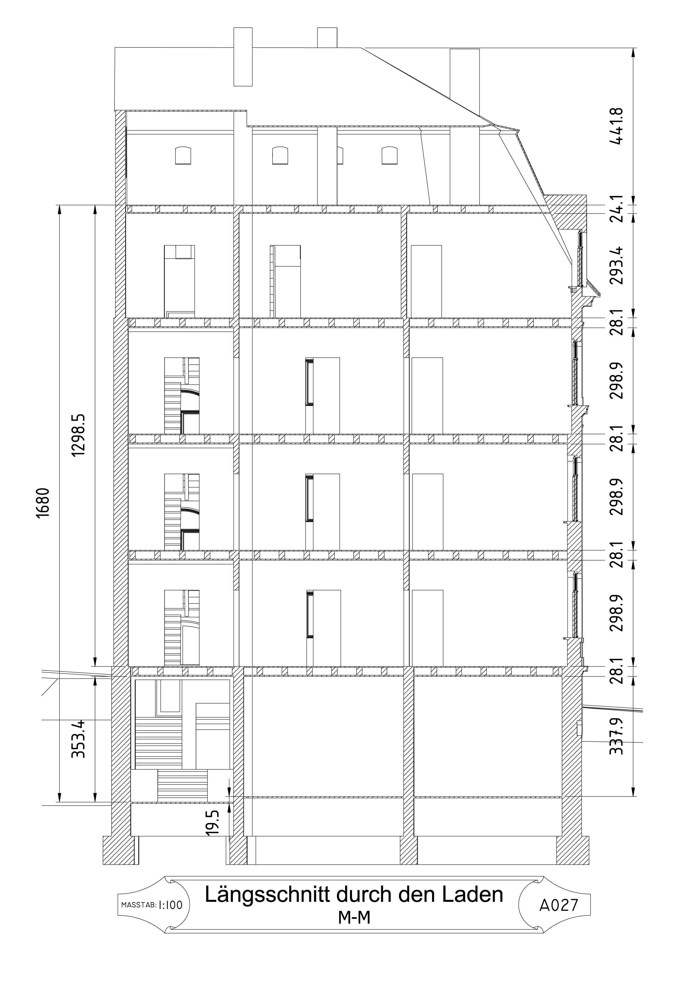
Längsschnitt durch den Laden des Hauses Dietel, Greiz.
Längsschnitt durch den Laden des Hauses Dietel
Querschnitt durch das Treppenhaus des Hauses Dietel, Greiz.
Querschnitt durch das Treppenhaus des Hauses Dietel
Längsschnitt durch die Jauchegrube des Hauses Dietel, Greiz.
Längsschnitt durch die Jauchegrube des Hauses Dietel
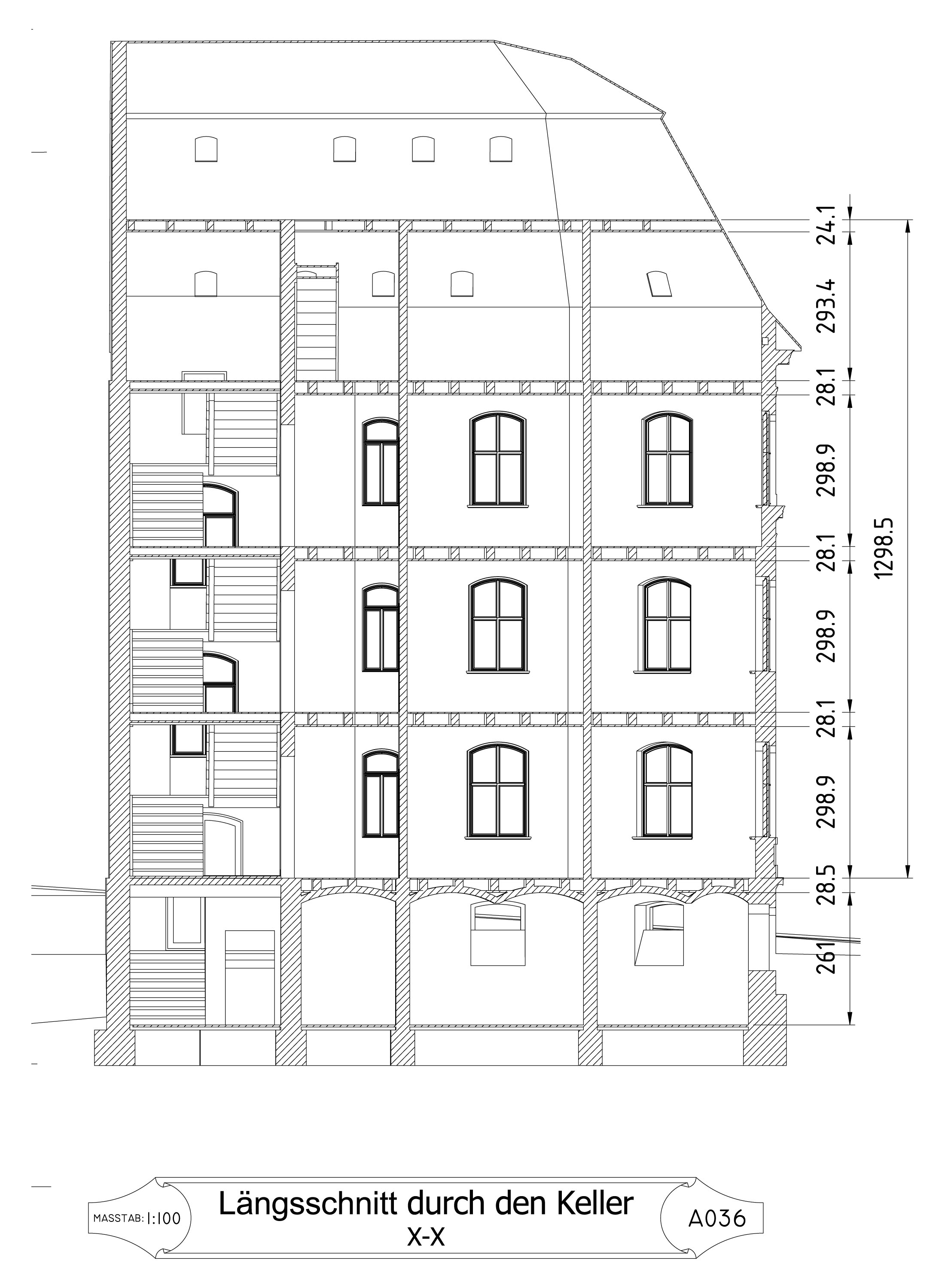
Längsschnitt durch den Keller des Hauses Dietel, Greiz.
Längsschnitt durch den Keller des Hauses Dietel
Grundriss des Dachgeschosses des Hauses Dietel (1930–1970), Greiz.
Grundriss des Dachgeschosses 1930–1970 des Hauses Dietel
Grundriss des Dachgeschosses des Hauses Dietel (1970–2019), Greiz.
Grundriss des Dachgeschosses 1970–2019 des Hauses Dietel